Bussana, newly built apartment
Ref. code: 13842
Sanremo, in the quiet and characteristic area of Bussana, for sale apartment on the first floor, located in an exclusive condominium completely renovated and insulated.
The property is part of a modern building, reinforced according to the most advanced anti-seismic regulations, to guarantee you safety and comfort.
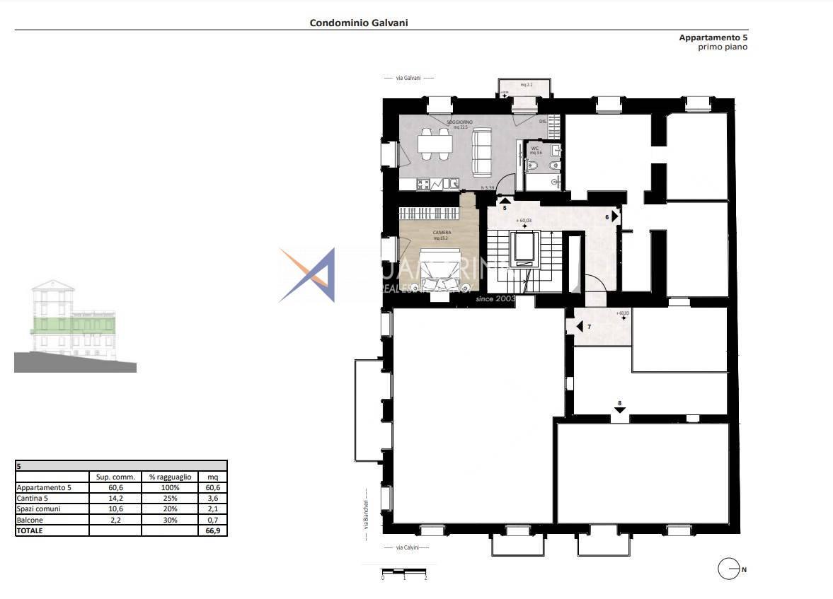
The apartment is composed as follows: entrance onto a large bright living area, with direct access to the balcony, double bedroom and bathroom with shower.
The ideal solution for those looking for a home ready to be customized, with floors and coverings to choose from a vast selection of samples already present on site.
The underfloor heating, powered by a hydronic heat pump, ensures maximum well-being throughout the year, while the rigid shock-resistant PVC windows with steel reinforcement guarantee excellent thermal and acoustic insulation.
The "Galvani" condominium is equipped with photovoltaic panels that ensure energy independence for all common areas, including the elevator and condominium rooms. An unmissable opportunity for those looking for a modern, efficient and safe home.
The apartment has a practical balcony and a convenient cellar.
Don't miss the opportunity to live in an exclusive, ecological and comfortable environment. Contact us for more information and to make an appointment.
Sanremo, in the quiet and characteristic area of Bussana, for sale apartment on the first floor, located in an exclusive condominium completely renovated and insulated.
The property is part of a modern building, reinforced according to the most advanced anti-seismic regulations, to guarantee you safety and comfort.
The apartment is composed as follows: entrance onto a large bright living area, with direct access to the balcony, double bedroom and bathroom with shower.
The ideal solution for those looking for a home ready to be customized, with floors and coverings to choose from a vast selection of samples already present on site.
The underfloor heating, powered by a hydronic heat pump, ensures maximum well-being throughout the year, while the rigid shock-resistant PVC windows with steel reinforcement guarantee excellent thermal and acoustic insulation.
The "Galvani" condominium is equipped with photovoltaic panels that ensure energy independence for all common areas, including the elevator and condominium rooms. An unmissable opportunity for those looking for a modern, efficient and safe home.
The apartment has a practical balcony and a convenient cellar.
Don't miss the opportunity to live in an exclusive, ecological and comfortable environment. Contact us for more information and to make an appointment.
- Reference: 13842
- Price: € 302.000
- Heating: autonomous
- Surface: sqm 60
- Rooms: 1
- Locals: 2
- Distance from the sea: meters 100
- Floor: 1
- Total plans: 3
- Locality: Bussana
- Bedrooms: 1
- MQ: 60
- Bathrooms: 1
€ 302.000
Aquamarina Real Estate Agency
via Vittorio Emanuele, 30218012 Bordighera (IM)
Phone: +39 0184 26.16.87
Mobile: +39 328 83.65.167
E-mail: info@aquamarina.email CALL REQUEST AN APPOINTMENT



