Sanremo, penthouse with sea view
                            
							
							Ref. code: 13800
                            	
Sanremo, just minutes from the city center and the beaches, we offer for sale a spacious penthouse with a magnificent sea-view terrace.
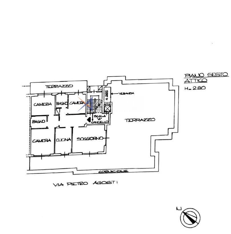
The property, which is offered in its original condition, is composed as follows: entrance, hallway, eat-in kitchen, living room, three bedrooms, and two bathrooms.
The property is completed by a large terrace of approximately 120 square meters from which you can enjoy a magnificent open sea view, two smaller balconies, a cellar, and a spacious garage.
Central heating with valves, convertible to autonomous.
                                
                                
									
                            
		
		
		
		
		
		
		
		
		
		
		
		
		
		
		
		
		
		                        
                    Sanremo, just minutes from the city center and the beaches, we offer for sale a spacious penthouse with a magnificent sea-view terrace.
The property, which is offered in its original condition, is composed as follows: entrance, hallway, eat-in kitchen, living room, three bedrooms, and two bathrooms.
The property is completed by a large terrace of approximately 120 square meters from which you can enjoy a magnificent open sea view, two smaller balconies, a cellar, and a spacious garage.
Central heating with valves, convertible to autonomous.
- Reference: 13800
- Price: € 400.000
- Sea View
- Heating: centralized
- Surface: sqm 105
- Rooms: 3
- Locals: 4
- Distance from the sea: meters 1000
- Floor: Attic
- Total plans: 5
- Condominium fees: 210 €/month
- Bedrooms: 3
- MQ: 105
- Bathrooms: 2
€ 400.000
																					
                         Aquamarina Real Estate Agency
                            via Vittorio Emanuele, 302
                            
                            Aquamarina Real Estate Agency
                            via Vittorio Emanuele, 30218012 Bordighera (IM)
Phone: +39 0184 26.16.87
Mobile: +39 328 83.65.167
E-mail: info@aquamarina.email CALL REQUEST AN APPOINTMENT
 
                     
                         
                         
									 
									 
									 
									 
									 
									 
									 
									 
									 
									 
									 
									 
									 
									 
									 
									 
									 
									 
									 
									 
									 
									 
									 
									 
									 
									 
									 
									 
									 
									 
									 
									 
									 
									 
									 
									 
									


 
      