Camporosso, Modern Villa with Pool and Mountain Views!
Ref. code: 14108
Modern Villa "Alma" with Pool and Mountain Views, Close to the Sea!
Just a few kilometers from the sea, in a quiet and private area, the modern newly built villa "Alma" with a swimming pool and magnificent mountain views is offered for sale.
The villa is currently under construction and will be fully completed in the near future.
The total area is approximately 500 m² and has the advantage of being divisible into two separate residential units.
Access from two sides, floor-to-ceiling panoramic windows with mountain views, a garden plot, swimming pool, and additional on-site parking spaces provide exclusivity to this property.
Spacious garage for 2 cars, with the possibility of conversion into a 3-car garage.
The villa is arranged over 2 floors:
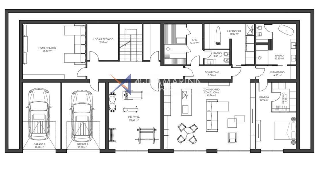
Ground floor:
Spacious living room with kitchen, bedroom, bathroom, laundry room with guest toilet, SPA area, fitness room / game room, technical room, storage room, 2 garages.
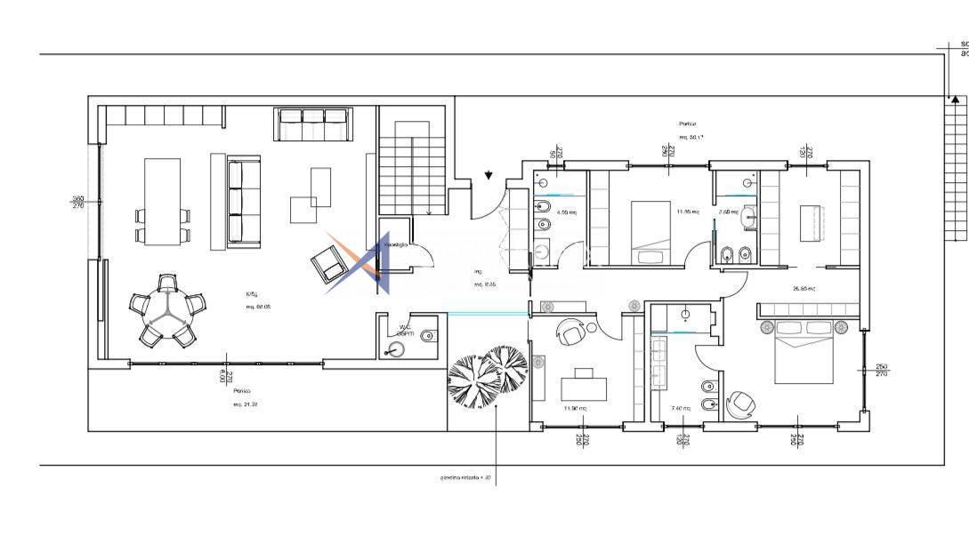
First floor:
Open-space living room with kitchen, guest toilet, 2 bedrooms, 2 bathrooms, study (or additional bedroom), large walk-in wardrobe.
Project modifications are possible according to the individual needs of the Buyer.
The price includes fully completed construction without interior finishes, as well as the swimming pool.
At the Buyer's request and for an additional fee, the villa can be completed turnkey.
The house is built using modern technologies and high-quality materials. It is an ideal place for those who value peace, tranquility, and privacy, while being just minutes away from the sea and all necessary infrastructure.
An exclusive option both for permanent residence and as an investment.
Modern Villa "Alma" with Pool and Mountain Views, Close to the Sea!
Just a few kilometers from the sea, in a quiet and private area, the modern newly built villa "Alma" with a swimming pool and magnificent mountain views is offered for sale.
The villa is currently under construction and will be fully completed in the near future.
The total area is approximately 500 m² and has the advantage of being divisible into two separate residential units.
Access from two sides, floor-to-ceiling panoramic windows with mountain views, a garden plot, swimming pool, and additional on-site parking spaces provide exclusivity to this property.
Spacious garage for 2 cars, with the possibility of conversion into a 3-car garage.
The villa is arranged over 2 floors:
Ground floor:
Spacious living room with kitchen, bedroom, bathroom, laundry room with guest toilet, SPA area, fitness room / game room, technical room, storage room, 2 garages.
First floor:
Open-space living room with kitchen, guest toilet, 2 bedrooms, 2 bathrooms, study (or additional bedroom), large walk-in wardrobe.
Project modifications are possible according to the individual needs of the Buyer.
The price includes fully completed construction without interior finishes, as well as the swimming pool.
At the Buyer's request and for an additional fee, the villa can be completed turnkey.
The house is built using modern technologies and high-quality materials. It is an ideal place for those who value peace, tranquility, and privacy, while being just minutes away from the sea and all necessary infrastructure.
An exclusive option both for permanent residence and as an investment.
- Reference: 14108
- Price: € 1.700.000
- Heating: autonomous
- Surface: sqm 500
- Rooms: 4
- Locals: 15
- Distance from the sea: meters 3000
- Floor: Ground floor
- Total plans: 2
- Exposure: southwest
- Bedrooms: 4
- MQ: 500
- Bathrooms: 6
€ 1.700.000
Aquamarina Real Estate Agency
via Vittorio Emanuele, 30218012 Bordighera (IM)
Phone: +39 0184 26.16.87
Mobile: +39 328 83.65.167
E-mail: info@aquamarina.email CALL REQUEST AN APPOINTMENT
