Cipressa, sea view villa
Ref. code: 13784
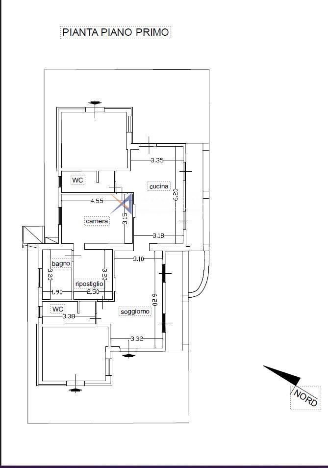
Cipressa, a few minutes from the beaches, we offer for sale a magnificent villa with sea view.
The property, recently built, is on two levels and is divided as follows:
entrance into a bright dining room, spacious eat-in kitchen, master bedroom with wardrobe and private bathroom, second bedroom, two further bathrooms and a third room used as a cinema room, but convertible into a third bedroom thanks to its generous size.
The basement, which is in its raw state, extends over another 130m2.
The property is surrounded by a magnificent sea view plot of about 1200m2 on which a swimming pool is being built, ideal for enjoying moments of relaxation in the open air and two convenient uncovered parking spaces.
Cipressa, a few minutes from the beaches, we offer for sale a magnificent villa with sea view.
The property, recently built, is on two levels and is divided as follows:
entrance into a bright dining room, spacious eat-in kitchen, master bedroom with wardrobe and private bathroom, second bedroom, two further bathrooms and a third room used as a cinema room, but convertible into a third bedroom thanks to its generous size.
The basement, which is in its raw state, extends over another 130m2.
The property is surrounded by a magnificent sea view plot of about 1200m2 on which a swimming pool is being built, ideal for enjoying moments of relaxation in the open air and two convenient uncovered parking spaces.
- Reference: 13784
- Price: € 1.200.000 tractable
- Sea View
- Heating: autonomous
- Surface: sqm 260
- Rooms: 3
- Locals: 6
- Distance from the sea: meters 500
- Locality: Piani
- Bedrooms: 3
- MQ: 260
- Bathrooms: 3
€ 1.200.000
Aquamarina Real Estate Agency
via Vittorio Emanuele, 30218012 Bordighera (IM)
Phone: +39 0184 26.16.87
Mobile: +39 328 83.65.167
E-mail: info@aquamarina.email CALL REQUEST AN APPOINTMENT
