Imperia, apartment in the center
Ref. code: 14105
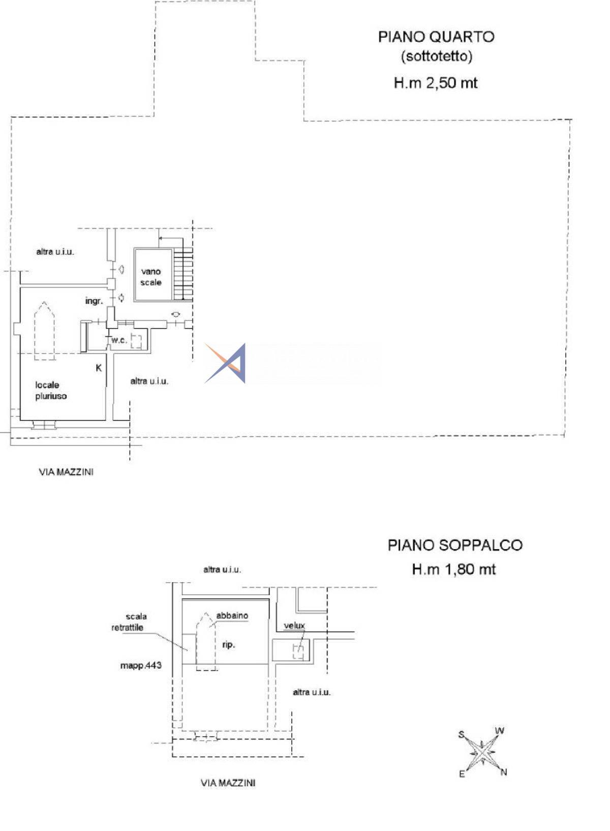
Imperia, apartment in the center. In the charming village of Porto Maurizio, centrally located and particularly convenient for walking to both the beaches and the shops of the historic center, we offer for sale an apartment on the fourth floor (with elevator) of a small condominium with low condominium fees. The property is located near the renowned cycle path that runs along the sea and conveniently connects various neighborhoods, as well as being well-connected to major city services such as supermarkets, schools, and public transportation. The apartment is a loft-style apartment with high ceilings and comprises an entrance hall with a spacious living area, an open-plan kitchen, a bathroom, a mezzanine level with the sleeping area, and a cellar, ideal for those seeking practicality without sacrificing space. The heating system is independent, with a boiler for both heating and domestic hot water, ensuring comfort and excellent energy management. Thanks to its location, low operating costs, and well-distributed spaces, this property is suitable both as a primary residence and a vacation home, and as an investment for those who want to live just steps from the sea without sacrificing the convenience of amenities.
Imperia, apartment in the center. In the charming village of Porto Maurizio, centrally located and particularly convenient for walking to both the beaches and the shops of the historic center, we offer for sale an apartment on the fourth floor (with elevator) of a small condominium with low condominium fees. The property is located near the renowned cycle path that runs along the sea and conveniently connects various neighborhoods, as well as being well-connected to major city services such as supermarkets, schools, and public transportation. The apartment is a loft-style apartment with high ceilings and comprises an entrance hall with a spacious living area, an open-plan kitchen, a bathroom, a mezzanine level with the sleeping area, and a cellar, ideal for those seeking practicality without sacrificing space. The heating system is independent, with a boiler for both heating and domestic hot water, ensuring comfort and excellent energy management. Thanks to its location, low operating costs, and well-distributed spaces, this property is suitable both as a primary residence and a vacation home, and as an investment for those who want to live just steps from the sea without sacrificing the convenience of amenities.
- Bedrooms: 1
- MQ: 60
- Bathrooms: 1
€ 87.000
Aquamarina Real Estate Agency
via Vittorio Emanuele, 30218012 Bordighera (IM)
Phone: +39 0184 26.16.87
Mobile: +39 328 83.65.167
E-mail: info@aquamarina.email CALL REQUEST AN APPOINTMENT

