Ospedaletti, seafront apartment
Ref. code: 13981
Reduced price
Ospedaletti, convenient to services and the center, we offer for sale a large apartment facing the sea.
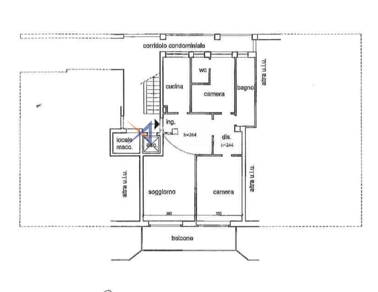
The accommodation, very bright thanks to its favorable exposure, is in excellent condition and tastefully furnished and is composed as follows: entrance hall, large living room with access to the magnificent seafront terrace, eat-in kitchen, sleeping area with two double bedrooms and two bathrooms.
The apartment also features a lovely private garden ideal for spending relaxing moments in the open air and enjoying the magnificent sea view.
To complete the comforts of this splendid property: air conditioning in all rooms, double glazed windows, private parking space. Concierge.
Direct access to the condominium swimming pool, the cycle path and the beaches
Ospedaletti, convenient to services and the center, we offer for sale a large apartment facing the sea.
The accommodation, very bright thanks to its favorable exposure, is in excellent condition and tastefully furnished and is composed as follows: entrance hall, large living room with access to the magnificent seafront terrace, eat-in kitchen, sleeping area with two double bedrooms and two bathrooms.
The apartment also features a lovely private garden ideal for spending relaxing moments in the open air and enjoying the magnificent sea view.
To complete the comforts of this splendid property: air conditioning in all rooms, double glazed windows, private parking space. Concierge.
Direct access to the condominium swimming pool, the cycle path and the beaches
- Reference: 13981
- Price: € 420.000
- Heating: hour meter
- Surface: sqm 95
- Rooms: 2
- Locals: 3
- Distance from the sea: meters 50
- Floor: Ground floor
- Condominium fees: 200 €/month
- Bedrooms: 2
- MQ: 95
- Bathrooms: 2
€ 420.000
Aquamarina Real Estate Agency
via Vittorio Emanuele, 30218012 Bordighera (IM)
Phone: +39 0184 26.16.87
Mobile: +39 328 83.65.167
E-mail: info@aquamarina.email CALL REQUEST AN APPOINTMENT



