Piani Cipressa Four-Room Apartment with Sea View
Ref. code: 13894
Piani Cipressa, Four-Room Apartment with Sea View for Sale
We present you an exclusive apartment just 200 meters from the sea and the most famous cycle path in Liguria that connects Imperia and Ospedaletti, 800 meters from the center of San Lorenzo al Mare, located in a refined context. This four-room apartment with independent entrance is on two levels:
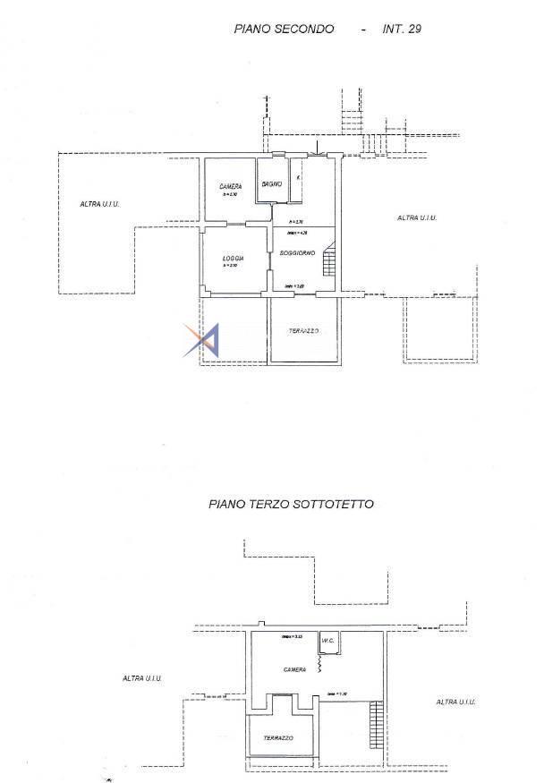
Second floor: Welcoming living entrance that opens onto a bright living room and a well-equipped kitchen, a bedroom, a bathroom and two terraces. Both terraces offer an incredible sea view and are suitable for moments of relaxation, dinners, lunches and breakfasts directly on the sea, one terrace is also equipped with a loggia to enjoy the outside at any time.
On the third floor: Accessible via an internal staircase, we find a further bedroom with a sea view terrace, a second bathroom and a study.
Furthermore, the apartment has two private parking spaces: one uncovered and one covered.
Tastefully renovated in 2018, there are valuable details, the property is equipped with high quality finishes and modern accessories that make it perfect to be lived in all year round. The heating is autonomous, with heat pumps, and it is sold complete with custom-made furnishings.
Don't miss the opportunity to live in this beautiful apartment with sea view! Contact us for more information or to arrange a visit.
Piani Cipressa, Four-Room Apartment with Sea View for Sale
We present you an exclusive apartment just 200 meters from the sea and the most famous cycle path in Liguria that connects Imperia and Ospedaletti, 800 meters from the center of San Lorenzo al Mare, located in a refined context. This four-room apartment with independent entrance is on two levels:
Second floor: Welcoming living entrance that opens onto a bright living room and a well-equipped kitchen, a bedroom, a bathroom and two terraces. Both terraces offer an incredible sea view and are suitable for moments of relaxation, dinners, lunches and breakfasts directly on the sea, one terrace is also equipped with a loggia to enjoy the outside at any time.
On the third floor: Accessible via an internal staircase, we find a further bedroom with a sea view terrace, a second bathroom and a study.
Furthermore, the apartment has two private parking spaces: one uncovered and one covered.
Tastefully renovated in 2018, there are valuable details, the property is equipped with high quality finishes and modern accessories that make it perfect to be lived in all year round. The heating is autonomous, with heat pumps, and it is sold complete with custom-made furnishings.
Don't miss the opportunity to live in this beautiful apartment with sea view! Contact us for more information or to arrange a visit.
- Reference: 13894
- Price: € 320.000
- Sea View
- Heating: autonomous
- Surface: sqm 79
- Rooms: 2
- Locals: 4
- Distance from the sea: meters 200
- Floor: On two levels
- Total plans: 3
- Exposure: North East/South East
- Locality: Piani
- Condominium fees: 98 €/month
- Bedrooms: 2
- MQ: 79
- Bathrooms: 2
SOLD
Aquamarina Real Estate Agency
via Vittorio Emanuele, 30218012 Bordighera (IM)
Phone: +39 0184 26.16.87
Mobile: +39 328 83.65.167
E-mail: info@aquamarina.email CALL REQUEST AN APPOINTMENT



