Sanremo, apartment with garden
Ref. code: 13901
Sanremo, Via Duca degli Abruzzi, one of the quietest and most residential areas of the city, convenient to the sea and the main services, we offer for sale a refined apartment with a large private garden.
Located in an elegant building surrounded by a large fenced area, the property offers privacy, security and tranquility, ensuring an ideal environment for those who want to live in the countryside without giving up proximity to the center.
The apartment, 180 square meters on the ground floor, boasts a private garden of 250 square meters, cared for down to the smallest details with gazebo, night lighting, stone flooring and automatic irrigation.
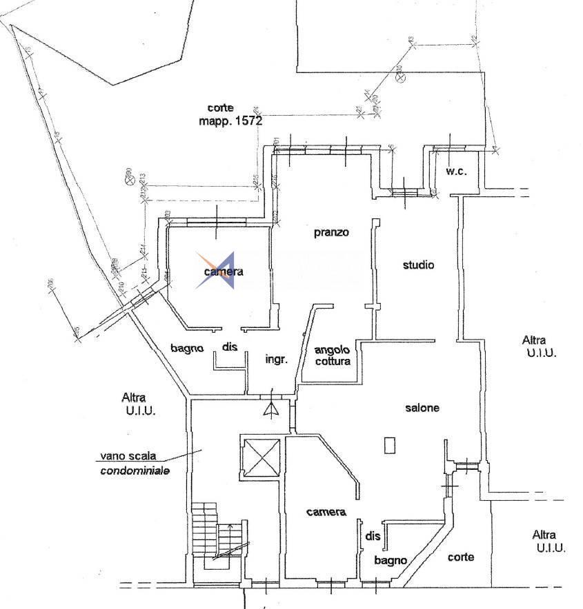
It is composed of two communicating housing units, each with an independent entrance.
The first unit, measuring 115 m2, includes a bright open-plan living room with dining room and open-plan kitchen, two well-lit double bedrooms, two bathrooms with windows and exclusive access to the garden.
The second, a 65 m2 two-room apartment, offers a large living area with open kitchen, a double bedroom, a bathroom with window and a private courtyard.
The property is in excellent condition, partially furnished and equipped with an independent methane gas heating system.
It also has two covered parking spaces in the garage and two cellars.
Perfect as a main residence, two-family solution or investment.
It is also possible to buy just the largest apartment for the price of €500,000.
For further details, please feel free to contact us.
Sanremo, Via Duca degli Abruzzi, one of the quietest and most residential areas of the city, convenient to the sea and the main services, we offer for sale a refined apartment with a large private garden.
Located in an elegant building surrounded by a large fenced area, the property offers privacy, security and tranquility, ensuring an ideal environment for those who want to live in the countryside without giving up proximity to the center.
The apartment, 180 square meters on the ground floor, boasts a private garden of 250 square meters, cared for down to the smallest details with gazebo, night lighting, stone flooring and automatic irrigation.
It is composed of two communicating housing units, each with an independent entrance.
The first unit, measuring 115 m2, includes a bright open-plan living room with dining room and open-plan kitchen, two well-lit double bedrooms, two bathrooms with windows and exclusive access to the garden.
The second, a 65 m2 two-room apartment, offers a large living area with open kitchen, a double bedroom, a bathroom with window and a private courtyard.
The property is in excellent condition, partially furnished and equipped with an independent methane gas heating system.
It also has two covered parking spaces in the garage and two cellars.
Perfect as a main residence, two-family solution or investment.
It is also possible to buy just the largest apartment for the price of €500,000.
For further details, please feel free to contact us.
- Reference: 13901
- Price: € 750.000
- Heating: autonomous
- Surface: sqm 185
- Rooms: 3
- Locals: 5
- Distance from the sea: meters 500
- Floor: Ground floor
- Total plans: 3
- Condominium fees: 160 €/month
- Bedrooms: 3
- MQ: 185
- Bathrooms: 3
€ 750.000
Aquamarina Real Estate Agency
via Vittorio Emanuele, 30218012 Bordighera (IM)
Phone: +39 0184 26.16.87
Mobile: +39 328 83.65.167
E-mail: info@aquamarina.email CALL REQUEST AN APPOINTMENT



