Sanremo Seafront Apartment
Ref. code: 14046
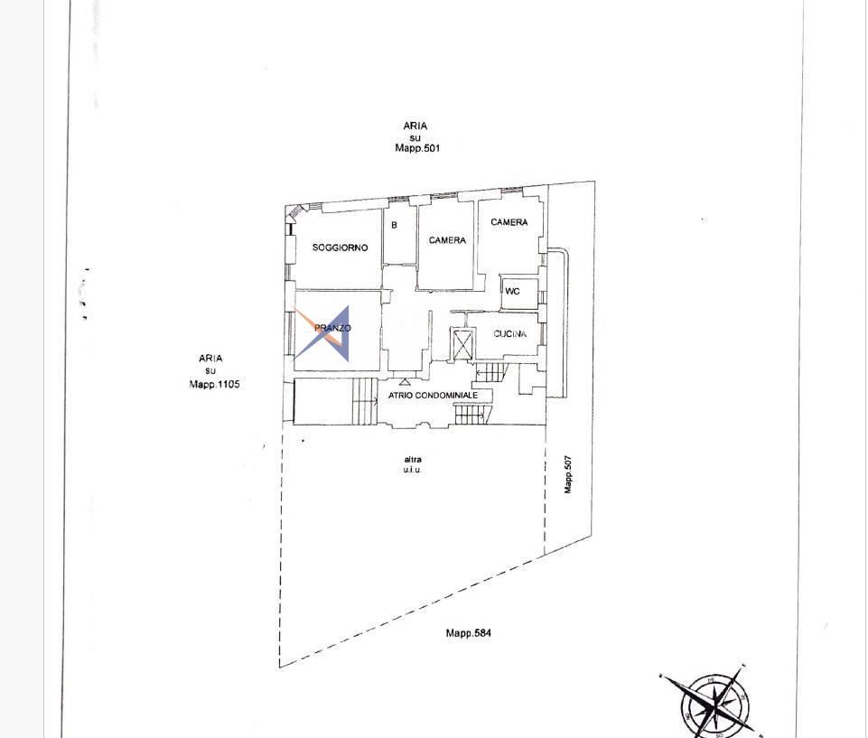
Sanremo: Apartment facing the sea and the bike path. We are selling a prestigious renovated apartment on Corso Orazio Raimondo, overlooking the sea, the bike path, and Porto Sole. We are located in one of Sanremo's most prestigious areas, right in the center and with all amenities close by, eliminating the need for transportation. The apartment is located in a stately, elegant, and prestigious building, with a video intercom, an electric door, and a shared parking area enclosed by a barrier. The facade renovation has just been completed. The property is on the mezzanine floor and features two entrances, allowing for the possibility of converting it into two apartments. The interior materials are high-quality, with marble and parquet floors, and the exterior windows are double-glazed aluminum. The entrance opens onto a large hallway, a living room with double doors, another large living room with bow windows, a bathroom with a window and a bathtub, and a bedroom. Continuing, we find another hallway containing a large double closet, a large bedroom with access to the outdoor balcony, a bathroom with a window and shower, an eat-in kitchen with French doors leading to the internal courtyard balcony, and a laundry room on the balcony, which can be converted into a third bathroom. The apartment faces south and enjoys abundant natural light and sea views. It has independent radiator heating and air conditioning for the summer. There is also a cellar and a parking space (sold separately) upon request.
Sanremo: Apartment facing the sea and the bike path. We are selling a prestigious renovated apartment on Corso Orazio Raimondo, overlooking the sea, the bike path, and Porto Sole. We are located in one of Sanremo's most prestigious areas, right in the center and with all amenities close by, eliminating the need for transportation. The apartment is located in a stately, elegant, and prestigious building, with a video intercom, an electric door, and a shared parking area enclosed by a barrier. The facade renovation has just been completed. The property is on the mezzanine floor and features two entrances, allowing for the possibility of converting it into two apartments. The interior materials are high-quality, with marble and parquet floors, and the exterior windows are double-glazed aluminum. The entrance opens onto a large hallway, a living room with double doors, another large living room with bow windows, a bathroom with a window and a bathtub, and a bedroom. Continuing, we find another hallway containing a large double closet, a large bedroom with access to the outdoor balcony, a bathroom with a window and shower, an eat-in kitchen with French doors leading to the internal courtyard balcony, and a laundry room on the balcony, which can be converted into a third bathroom. The apartment faces south and enjoys abundant natural light and sea views. It has independent radiator heating and air conditioning for the summer. There is also a cellar and a parking space (sold separately) upon request.
- Bedrooms: 3
- MQ: 152
- Bathrooms: 3
€ 720.000
Aquamarina Real Estate Agency
via Vittorio Emanuele, 30218012 Bordighera (IM)
Phone: +39 0184 26.16.87
Mobile: +39 328 83.65.167
E-mail: info@aquamarina.email CALL REQUEST AN APPOINTMENT



