Ventimiglia, penthouse with sea view
Ref. code: 13943
Reduced price
Ventimiglia, we offer for sale a wonderful penthouse with a large terrace of about 100 square meters that offers an enchanting sea view, a few steps from the beaches, the promenade and the cycle path.
This property can be considered a unique opportunity, located in one of the most exclusive and privileged residential areas, involved in large urban regeneration projects.
The interior spaces leave plenty of room for customization and the magnificent terrace offers an unparalleled sea view from dawn to dusk, an ideal space to enjoy convivial moments outdoors or relax in the sun.
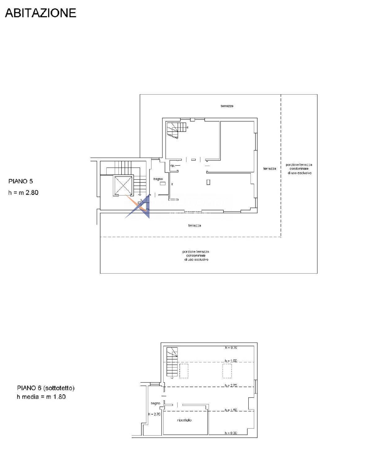
The apartment is on two levels, on the fifth and sixth floors easily reachable by elevator and is currently composed as follows: entrance leading to the very bright living room with open kitchen, bathroom with shower, two bedrooms, closet, large perimeter terrace and staircase leading to the upper floor where we are welcomed by a single "open space" attic room, further closet and windowed bathroom with bathtub.
The property is completed by a cellar and a convenient single garage.
The heating is autonomous and the condominium fees are very low.
An ideal housing solution for families, to spend unforgettable holidays or for those who want to have rooms dedicated to guests or studies.
Ventimiglia, we offer for sale a wonderful penthouse with a large terrace of about 100 square meters that offers an enchanting sea view, a few steps from the beaches, the promenade and the cycle path.
This property can be considered a unique opportunity, located in one of the most exclusive and privileged residential areas, involved in large urban regeneration projects.
The interior spaces leave plenty of room for customization and the magnificent terrace offers an unparalleled sea view from dawn to dusk, an ideal space to enjoy convivial moments outdoors or relax in the sun.
The apartment is on two levels, on the fifth and sixth floors easily reachable by elevator and is currently composed as follows: entrance leading to the very bright living room with open kitchen, bathroom with shower, two bedrooms, closet, large perimeter terrace and staircase leading to the upper floor where we are welcomed by a single "open space" attic room, further closet and windowed bathroom with bathtub.
The property is completed by a cellar and a convenient single garage.
The heating is autonomous and the condominium fees are very low.
An ideal housing solution for families, to spend unforgettable holidays or for those who want to have rooms dedicated to guests or studies.
- Reference: 13943
- Price: € 480.000
- Sea View
- Heating: autonomous
- Surface: sqm 107
- Rooms: 3
- Locals: 6
- Floor: On two levels
- Total plans: 6
- Exposure: SOUTH/EAST/WEST
- Condominium fees: 95 €/month
- Bedrooms: 3
- MQ: 107
- Bathrooms: 2
€ 480.000
Aquamarina Real Estate Agency
via Vittorio Emanuele, 30218012 Bordighera (IM)
Phone: +39 0184 26.16.87
Mobile: +39 328 83.65.167
E-mail: info@aquamarina.email CALL REQUEST AN APPOINTMENT



